Sistema de Ventana, Balconera y Puerta Corredera Perimetral con Rotura de Puente Térmico, con cierre central de corte recto, con una gran variedad de soluciones gracias a su extensa gama de perfiles y accesorios.

Descripción Serie E75 RPT
Sistema de Ventana, Balconera y Puerta Corredera Perimetral con Rotura de Puente Térmico, con cierre central de corte recto, con una gran variedad de soluciones gracias a su extensa gama de perfiles y accesorios.
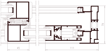
- Marco de 79 mm. (2 Carriles)
- Marco de 127 mm. (3 Carriles).
- Hoja de 32 mm.
- Espesores Medios: 1,5-1,6 mm.
- Acristalamientos hasta 26 mm.
- Peso Máximo: 160 Kg.
- Lacados Colores (RAL, Moteados, Rugosos)
- Efecto Madera
- Anodizado
- Posibilidad de bicolor
- Corredera de 2 Hojas
- Corredera de 3 Hojas
- Corredera de 4 Hojas
- Corredera de 6 Hojas
- Galandage 1 hoja
- Galandage 2 hojas
- Corredera 1 hoja + fijo
- Corredera tricarril



